SATGURU SUDHIKSHA
By Mithbavkar's group of companies
Configuration
Price
1 & 2 BHK
₹ On Request
Possession
Under Construction
RERA Number
Chembur, Mumbai
Not Applicable


Satguru Sudhiksha Description
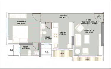
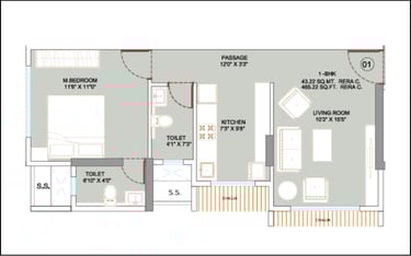
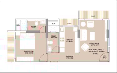
Satguru Sudhiksha is a premium G+8 storeyed luxury residential project by Mithbavkar’s Group of Companies, a trusted name in real estate since 1995. Scheduled for RPD in March 2026, the project is thoughtfully located on Chembur Gavthan Road No. 2, near Sandu Garden, Chembur (East), perfectly positioned between Sandu Garden and Diamond Garden. With only 5 exclusive units available, including well-planned 1 BHK and 2 BHK residences ranging from 465 to 638 sq. ft. carpet area, Satguru Sudhiksha offers a rare opportunity for homebuyers seeking privacy, quality construction, and refined urban living.
The project is designed to deliver a luxurious lifestyle with modern amenities such as a terrace-level landscaped seating area with a kids’ play zone, a fully equipped fitness centre, society office, stilt car parking, high-speed elevators, and 24x7 CCTV surveillance. A grand double-height entrance lobby with reception and elegant architectural detailing enhances the overall appeal. Connectivity is a key highlight, with Chembur railway station just 5 minutes away, the proposed metro station within 5 minutes, and the main road only 3 minutes away. Banks, ATMs, hospitals, schools, and colleges are all within a short walking or driving distance, making Satguru Sudhiksha an ideal choice for comfortable and well-connected city living.
Satguru Sudhiksha Amenities
Kids Playarea


Multipurpose Hall


Meditation Area
Gym


Pool


Jogging Track
Barbeque Space
Garden Area
Lounge and Bar
Satguru Sudhiksha Photos




Get in touch
Phone
9920283427
MAHARERA Number
A051182501893


Sai Saburi Chembur, 2 BHK Apartment in Chembur, 1 BHK Apartment in Chembur







